Charming, spacious Brooklyn home with character In Prospect Heights 588 Sterling Place, Brooklyn NY
Sub Listing
588 Sterling Place, # 3
Property Detail
Property Description
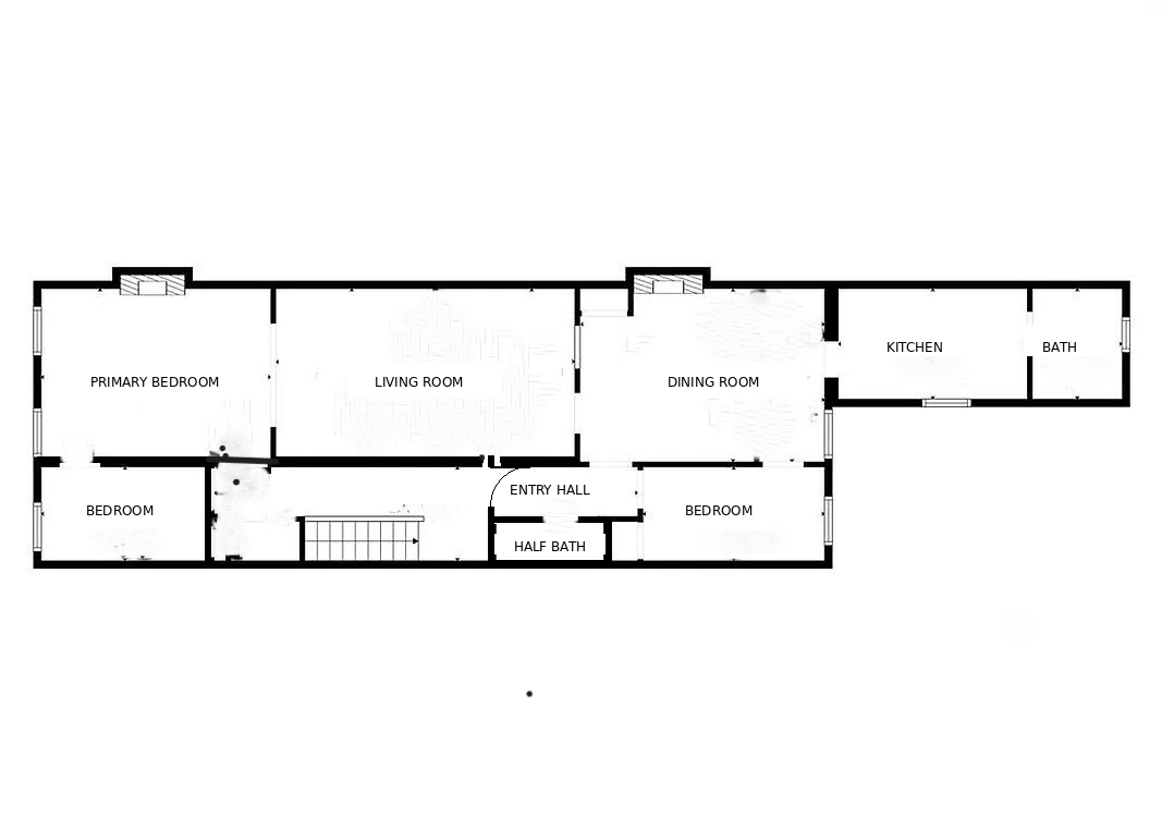
This spacious 2.5-bedroom / 1.5-bath home offers a flexible layout with generous proportions, prewar character, and a comfortable flow rarely found in today’s rentals.
The apartment features a large living room and separate dining room with a decorative cast-iron fireplace, high ceilings, wood floors, and lots of windows.
The windowed galley kitchen is thoughtfully laid out with modern cabinetry, stainless steel appliances, a full-size gas range, dishwasher, and good counter space for everyday cooking. The apartment also offers one full windowed bath plus an additional vintage half bath, adding convenience for daily living and entertaining.
The primary bedroom is spacious and airy, with room for a queen or king-size bed, additional furniture, and storage. A smaller room located off the primary bedroom works beautifully as a home office, nursery, dressing room, guest space, or creative studio. A third bright, medium-sized bedroom is located off the dining room, offering additional flexibility.
Set on the border of Prospect Heights and Crown Heights, the apartment is minutes to neighborhood cafes, restaurants, shops along Washington and Franklin Avenues, 2, 3, 4, 5 subway lines, short stroll to Prospect Park, the Brooklyn Museum, the Brooklyn Botanic Garden, and the vibrant energy of both neighborhoods.
A charming, spacious Brooklyn home with character, flexibility, and a layout that truly feels like a wonderful place to call home.





























